Project
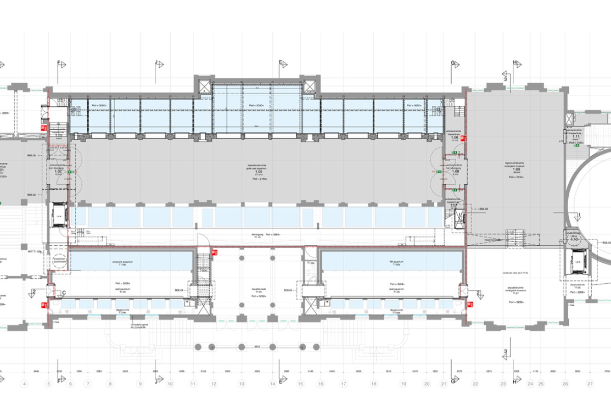
Aquariumgebouw Artis
Het Rijksmonument Aquariumgebouw van Artis, dat uit 1882 dateert, wordt ingrijpend gerestaureerd.


- Locatie:
- Amsterdam
- Opdrachtgever:
- Natura Artis Magistra - Amsterdam
- Architect:
- OTH architecten - Amsterdam





Project
Het Rijksmonument Aquariumgebouw van Artis, dat uit 1882 dateert, wordt ingrijpend gerestaureerd.