Project
Aquarium Building of Artis
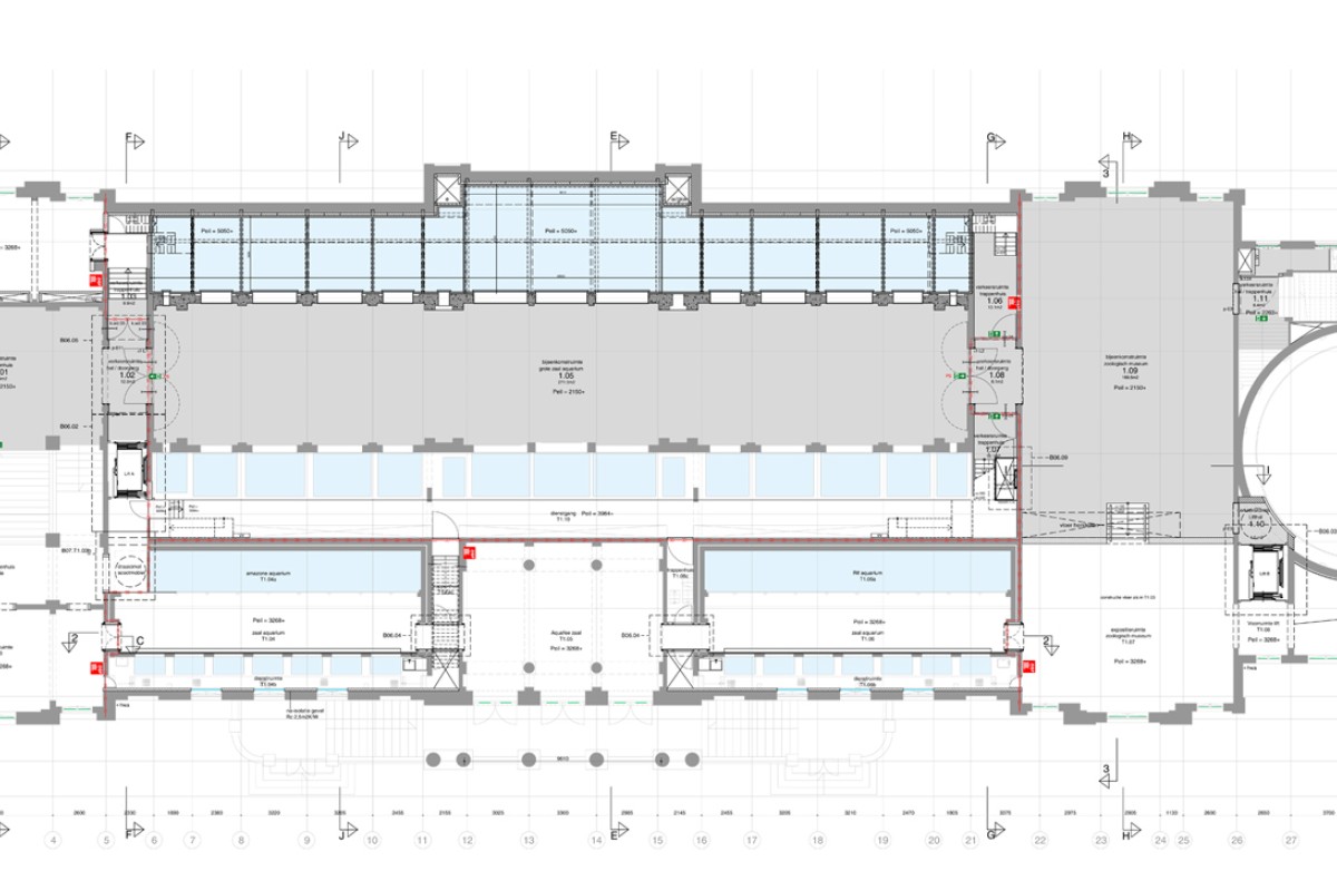
The National Monument Aquarium Building of Artis, which dates back to 1882, is being radically restored.


- Locatie:
- Amsterdam
- Opdrachtgever:
- Natura Artis Magistra - Amsterdam
- Architect:
- OTH - Amsterdam


Project
The National Monument Aquarium Building of Artis, which dates back to 1882, is being radically restored.