Project
Parkeergarage Nieuw Argentinië
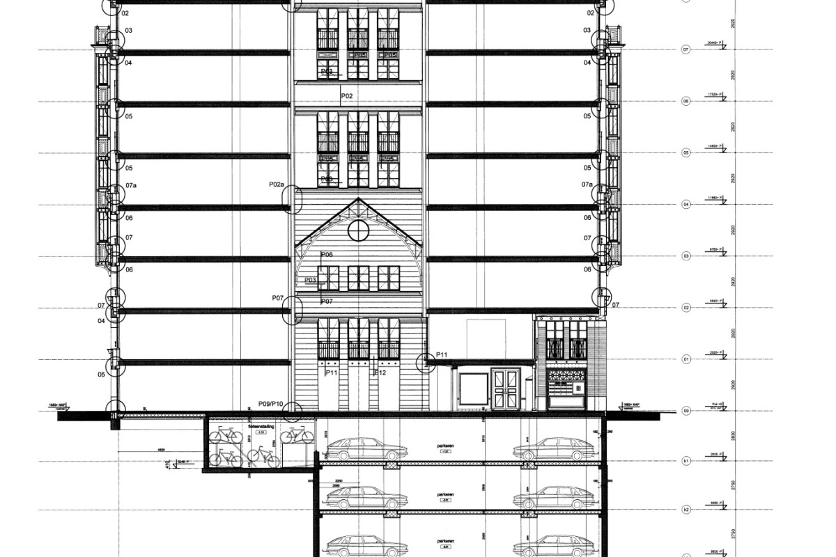
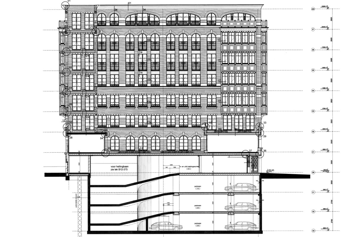
Onder het nieuwe appartementencomplex (43.000 m² totaal) is een 3-laagse ondergrondse parkeergarage met 350 parkeerplaatsen en twee fietskelders van één laag gerealiseerd.


- Locatie:
- Amsterdam
- Opdrachtgever:
- Stadgenoot - Amsterdam
- Architect:
- Breitman & Breitman-Krier - Parijs, Frankrijk
- Aannemer:
- IBB Kondor - Leiden


![]()
"Ik ben trots op onze belangrijke bijdrage aan dit project. Ons geheel andere ontwerpadvies was niet alleen kostenbesparend maar leverde gelijktijdig meer capaciteit en heldere draagstructuren."
Cor den Hartog, constructeur/projectleiderSWINN
Projectinformatie
Ondergrondse schoonheid.
Een mooi onderdeel van het project voor SWINN was de constructie van de parkeergarage onder het appartementencomplex Nieuw Argentinië aan de Oostelijke Handelskade in Amsterdam. Dit prachtige complex direct aan het IJ bestaat uit twee bouwblokken met 240 appartementen en 2.000 m3 commerciële ruimte. In totaal beslaat het een oppervlakte van 43.000 m2.
De constructieve uitdaging voor SWINN was te werken met de oorspronkelijke elementen en een oplossing te vinden voor de bestaande problemen. Een houten vlonder, nodig voor de stabiliteit van de oude kademuur, vormde in het oorspronkelijke ontwerp een sta in de weg. De garage zou uit twee lagen bestaan en door de houten vlonder van de kademuur gebouwd worden. Hierbij zouden verschillende overgangsconstructies en sloopwerkzaamheden uitgevoerd moeten worden. Een kostbare aangelegenheid.
SWINN heeft in overleg met de architecten aangestuurd op een slimme, kostenbesparende oplossing, waarbij de houten vlonder intact kon worden gelaten. Een alternatief in de vorm van een smalle rechthoekige 3-laagse garage positioneerde hem naast het vlonder en netjes onder het complex. De garage van drie lagen, met mooie doorlopende verticale draaglijnen, leverde zo een enorme kostenbesparing van 500.000 euro op. Door mee te denken en kennis te delen met alle betrokken partners brengt SWINN in ieder project inventiviteit en deskundigheid ter tafel.


